14 Junio 2013
La nueva oficina para Dolce&Gabbana, en Viale Piave, Milan.
Un nuevo proyecto en el que el vidrio, metal, piedra y hormigón interactúan en una composición sólida y armoniosa.
Un nuevo proyecto en el que el vidrio, metal, piedra y hormigón interactúan en una composición sólida y armoniosa.
© Andrea Martiradonna
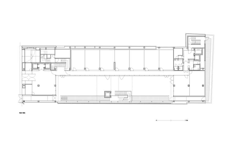
La forma larga y estrecha del lote y el volumen del edificio preexistente, han dado lugar a una solución de composición que incluye tres edificios paralelos. Un edificio de Viale Piave y otro de más atrás, que sube siete pisos sobre el suelo. El cuerpo central, unido al resto de la construcción mediante un sistema de escalera y vías aéreas, tiene tres pisos y es suspendido sobre un cuerpo que une los tres edificios, perpendicular a Viale Piave y con un aumento de cuatro pisos por encima del suelo. De esta manera se crea un gran patio interior, en el fondo, pasado por el alto de los edificios. El plan también asegura tres pisos subterráneos, dos para ser usados como estacionamiento.
La compleja estructura del edificio refleja la variedad de usos de los espacios, con oficinas, áreas para la recepción de invitados y entretenimiento y las áreas de coordinación para la preparación de desfiles de moda ubicados en diferentes pisos, y con zonas comunes y salas de reuniones en la planta baja, que dan al patio.
La forma larga y estrecha del lote y el volumen del edificio preexistente, han dado lugar a una solución de composición que incluye tres edificios paralelos. Un edificio de Viale Piave y otro de más atrás, que sube siete pisos sobre el suelo. El cuerpo central, unido al resto de la construcción mediante un sistema de escalera y vías aéreas, tiene tres pisos y es suspendido sobre un cuerpo que une los tres edificios, perpendicular a Viale Piave y con un aumento de cuatro pisos por encima del suelo. De esta manera se crea un gran patio interior, en el fondo, pasado por el alto de los edificios. El plan también asegura tres pisos subterráneos, dos para ser usados como estacionamiento.
La compleja estructura del edificio refleja la variedad de usos de los espacios, con oficinas, áreas para la recepción de invitados y entretenimiento y las áreas de coordinación para la preparación de desfiles de moda ubicados en diferentes pisos, y con zonas comunes y salas de reuniones en la planta baja, que dan al patio.
© Andrea Martiradonna
La fachada en Viale Piave cuenta con un sistema de brise-soleil de módulos cuadrados de 3.60×3.60m, superpuestos en forma escalonada, fabricados en acero inoxidable como los listones en la fachada del espacio adyacente Metropol. En la noche los anima la iluminación interior de la fachada y pone de manifiesto el patrón cromático de las ventanas, de cristal transparente en el que se alterna en tonos grises, correspondientes a las ventanas abiertas y aquellas que son fijas. Los siete pisos con ventanas están de pie sobre un zócalo que es similar en el tamaño y materialidad al Metropol, estableciendo una fuerte continuidad visual.
El estilo se utiliza para el frente de la calle, que transmite una sensación de ligereza y transparencia a través de la utilización de vidrio y metal, contrastando con el estilo más austero de las fachadas interiores. Aquí el tema de módulos cuadrados de la fachada se repite en Viale Piave, en el tamaño y la geometría, pero hecha de hormigón reforzado con vidrio (GRC), con puertas y ventanas de vidrio.
La fachada en Viale Piave cuenta con un sistema de brise-soleil de módulos cuadrados de 3.60×3.60m, superpuestos en forma escalonada, fabricados en acero inoxidable como los listones en la fachada del espacio adyacente Metropol. En la noche los anima la iluminación interior de la fachada y pone de manifiesto el patrón cromático de las ventanas, de cristal transparente en el que se alterna en tonos grises, correspondientes a las ventanas abiertas y aquellas que son fijas. Los siete pisos con ventanas están de pie sobre un zócalo que es similar en el tamaño y materialidad al Metropol, estableciendo una fuerte continuidad visual.
El estilo se utiliza para el frente de la calle, que transmite una sensación de ligereza y transparencia a través de la utilización de vidrio y metal, contrastando con el estilo más austero de las fachadas interiores. Aquí el tema de módulos cuadrados de la fachada se repite en Viale Piave, en el tamaño y la geometría, pero hecha de hormigón reforzado con vidrio (GRC), con puertas y ventanas de vidrio.
© Andrea Martiradonna
Los interiores de las oficinas y espacios de conexión se caracterizan por un diseño sencillo y funcional, organizado en espacios abiertos. Los techos de cemento, moldeados con listones de madera, se dejan al descubierto, y tienen vigas equipadas con sistemas de iluminación y climatización. Una variedad de materiales se utilizan para los suelos: baldosas de gres en las oficinas, suelos de roble en las áreas de coordinación de desfiles de moda y las viejas maderas recuperadas en las áreas de recepción para los huéspedes y de entretenimiento. En la planta baja, tanto en el interior como en el patio, Basaltina la piedra volcánica oscura, se presenta en todas partes. Tanto aquí, como en los otros proyectos hechos para Dolce & Gabbana, la estética de la Basaltina expresa un claro sentimiento del Mediterráneo, que recuerda una fuerte referencia para la casa de moda.
Los interiores de las oficinas y espacios de conexión se caracterizan por un diseño sencillo y funcional, organizado en espacios abiertos. Los techos de cemento, moldeados con listones de madera, se dejan al descubierto, y tienen vigas equipadas con sistemas de iluminación y climatización. Una variedad de materiales se utilizan para los suelos: baldosas de gres en las oficinas, suelos de roble en las áreas de coordinación de desfiles de moda y las viejas maderas recuperadas en las áreas de recepción para los huéspedes y de entretenimiento. En la planta baja, tanto en el interior como en el patio, Basaltina la piedra volcánica oscura, se presenta en todas partes. Tanto aquí, como en los otros proyectos hechos para Dolce & Gabbana, la estética de la Basaltina expresa un claro sentimiento del Mediterráneo, que recuerda una fuerte referencia para la casa de moda.
http://www.plataformaarquitectura.cl/2013/06/14/oficina-dolce-and-gabbana-piuarch/











