
Courtesy of BURO II
Architects: BURO II
Location: Anderlecht, Brussels, Belgium
Collaborator: Vanhaerents NV
Client: M-Team
Cost: € 11,508,239
Project Completed: April, 2009
Photographs: Courtesy of BURO II

The Brussels Region, the GOMB and Municipality of Anderlecht have created a new business zone on land covering 3.2 hectares. It is located on the Lenniksebaan, not far from the Erasmus Hospital and right next to a metro station and bus stop. Its aim is to attract high-tech companies to the Brussels Region and offer them the opportunity to grow. The choice of location is strategic: easily accessible by car and by public transport, a calm working environment for employees and flexibility for the future.

The client is an IT service company that supplies high-tech services to neutral, liberal and independent medical insurance funds. The M-team places a number of basic values high on its list of priorities: innovation, respect, integrity, commitment and solidarity.

The new building is a logical step to ensure the future development of the fast-growing M-team that currently has a workforce numbering 200. Cost, high-quality design and tight timing were crucial preconditions for BURO II. Commitment.

At the heart of the design – project definition
The company was housed previously on a site that was unable to keep up with the growth of the company. Functions were all mixed up, the reception for clients was reached via a tangle of corridors, colleagues were unable to hold enough meetings to discuss issues, etc. BURO II started with interviews in order to reach a project definition and thus clarify the aim of the programme. The organisational structure was translated into a design for a building that fits the company like a glove. A considerable amount of time was spent on making sure the programme was crystal clear and this yielded its fruits.

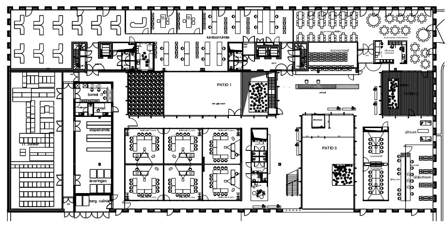
One of the objectives was to break through the concept of the different ‘islands’ within the company and at the same time promote communication between colleagues. The open plan offices with individual workstations provided the solution for transparency and dialogue. Good acoustic walls proved to be very effective here. Plus there was a need for informal discussion areas for brainstorming.

Informal discussion areas as well as more formal meeting rooms that can be used without needing to be booked were created for each department. Solidarity through teamwork. A number of functional elements were also brought together such as the copy/coffee corner. Different systems were set up for daily filing and sleeping archives and here again functions were grouped: an archiving and printing area.

Signposting also forms an important concept in interior design and like the furniture this is uniform throughout the whole building. This uniformity means that it is flexible to use. On the first floor for instance there is a modular auditorium where tables and chairs can be brought in depending on requirements. Thanks to removable walls, the auditorium can be transformed into a multi-purpose reception room for staff parties, receptions or the annual Christmas party. This uniformity removes the hierarchical differences between management and staff: everyone has the same accommodation. Respect.

How the building works: from open to ‘out of bounds’

The building itself is split up into different zones. The project definition revealed a clear need for a unit where clients could be received, training courses given and meetings with external contacts held, and a unit for the exclusive use of the employees themselves. This was translated into the low volume unit for the public and the high-rise office building. Alpha and Beta training rooms were also created for developing software. The value of ‘integrity’ refers to the transparency and honesty that is visible everywhere in the building.

A green building that exudes peace and professionalism.

And finally: innovation. A fundamental choice for a green building, not just through the installation of vegetable roofs, but also because of the techniques used for lighting and heating, etc. and through the choice of different materials. Right from day one for instance, a fundamental choice was made to target an energy consumption far below the proposed Flemish energy target (E75).

The designers have added a skin to the building that gives it an excellent k-value (K35) which is well below the E75 target. Natural daylight ensures that no more lighting is used than is absolutely necessary. The vegetable roofs with marram grass and sedums, together with the patios give the building an energising character in addition to ensuring good water management. The company invested in ensuring a pleasant working climate by providing thermal and acoustic comfort and good air quality with sun blinds and acoustic walls.

The outside area has been laid out with the greatest care with gravel areas and planted areas surrounded by concrete or by wooden decking for the terraces of the cafeteria and the high-rise building. The car parking spaces on the ground floor are marked out in the concrete floor by a zone in washed-out concrete. This is a building of today made for the future.



http://www.archdaily.com/63961/m-team-anderlecht-buro-ii/#more-63961