23 Febrero 2012
The design of the sports pavilion aims to achieve an appropriate relationship with the residential environment and landscape of the surrounding area.
Its location on the outskirts of Barbate, set in a natural area far from the town center was the reason for extending the program on the site. The building looks for a proper relationship with the natural landscape and with visual points of interest. The only points of interest are the traditional salting warehouses and a part of the pine forest next to the site. Therefore, with the roof we have attempted to mimic these traditional warehouses and the courtyard with pines reminds us of the forested area next to the site.
© EDDEA
The lack of connection between the access to the sports pavilion and the building itself is the reason for designing a new entry on the west area of the building. This area represents the void in the volume, which combined with the green space at the front leads the visitor to the main entrance. Thus, the openness and public identity of the construction is properly represented, beginning with the green space located in the main facade.
© EDDEA
This wooded area that introduces the visitor to small dunes that change with the intensity of the winds, gives continuity to the interior void from which one enters, providing the appropriate identity and recognition of the public and open nature of the building.
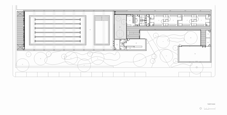
lower plan
Among the main contributions of this facility are those that try to advance on the qualification of this type of sports facility. Traditionally perceived as a dark space and with little relationship with its surrounding environment, in this project, the accesses, the private spaces, the use of natural light in the pool area, and their relationship with the outside are all functional, but at the same time aesthetic.
section
The West end houses the change rooms, control and fitness center, connected by a hall and an interior courtyard that filters and incorporates the sunlight. After this court and located on the east side of the building, the swimming pools are situated in a clear open space, illuminated by warm walls and beams painted in white that allow us to reduce the amount of lighting fixtures
http://www.archdaily.com/210847/sports-pavilion-in-cadiz-eddea/








