16 marzo 2012
Yungang Grottoes Museum in Datong(approved construction by State Administration of Cultural Heritage and Shanxi provincial government in 2010). Established on the west edge of Yungang Grottoes in Datong, within the scenic spot of Conservation Zone, is one of subprojects at the whole renovation area of Yugang Grottoes. Situated in southwest of the scenic spot, enclosed by Northern Wei Grottoed in north .The project covers a total construction area of 9939.46 square meters, containing an exhibition hall and a multi-functional performing arts center(recovered at the site of the ancient city).
The entire appearance is designed to present the arrangement of several arching-shaped strips in 4 meters wide by 40 meters long each. The exhibition hall is a one layer long-span space, which is 6 meters deep underground while the highest elevation above ground is 5.8 meters. The performing arts center based on the careful recovery of histrionic place in south edge has an underground layer which is as high as 3.6 meters, the height of cornice on ground floor is 7.0 meters. On the front facade,the architect took the design of hollow-out,which is benefit for side and makes the whole building more slim and graceful.
The entire appearance is designed to present the arrangement of several arching-shaped strips in 4 meters wide by 40 meters long each. The exhibition hall is a one layer long-span space, which is 6 meters deep underground while the highest elevation above ground is 5.8 meters. The performing arts center based on the careful recovery of histrionic place in south edge has an underground layer which is as high as 3.6 meters, the height of cornice on ground floor is 7.0 meters. On the front facade,the architect took the design of hollow-out,which is benefit for side and makes the whole building more slim and graceful.
Courtesy of Do Union Architecture
Design concept
Yungang Grottoes is one of largest grottoes in China. There are 45 main caves,252 niches, and over 51000 stone sculptures, enjoying the fine reputation around the world with its delicacy and eternal beauty. The whole masterpiece reaches the first peak of Chinese Buddhist arts, representing the most outstanding Chinese Buddhist cave arts in 5th and 6th century. Since one thousand five hundred years, Yungang Grottoes has suffered from rigors of time, bad effects of weathering, erosion and earthquakes, the cave and sculptures are dilapidated and incomplete,causing serious damages.
Design concept
Yungang Grottoes is one of largest grottoes in China. There are 45 main caves,252 niches, and over 51000 stone sculptures, enjoying the fine reputation around the world with its delicacy and eternal beauty. The whole masterpiece reaches the first peak of Chinese Buddhist arts, representing the most outstanding Chinese Buddhist cave arts in 5th and 6th century. Since one thousand five hundred years, Yungang Grottoes has suffered from rigors of time, bad effects of weathering, erosion and earthquakes, the cave and sculptures are dilapidated and incomplete,causing serious damages.
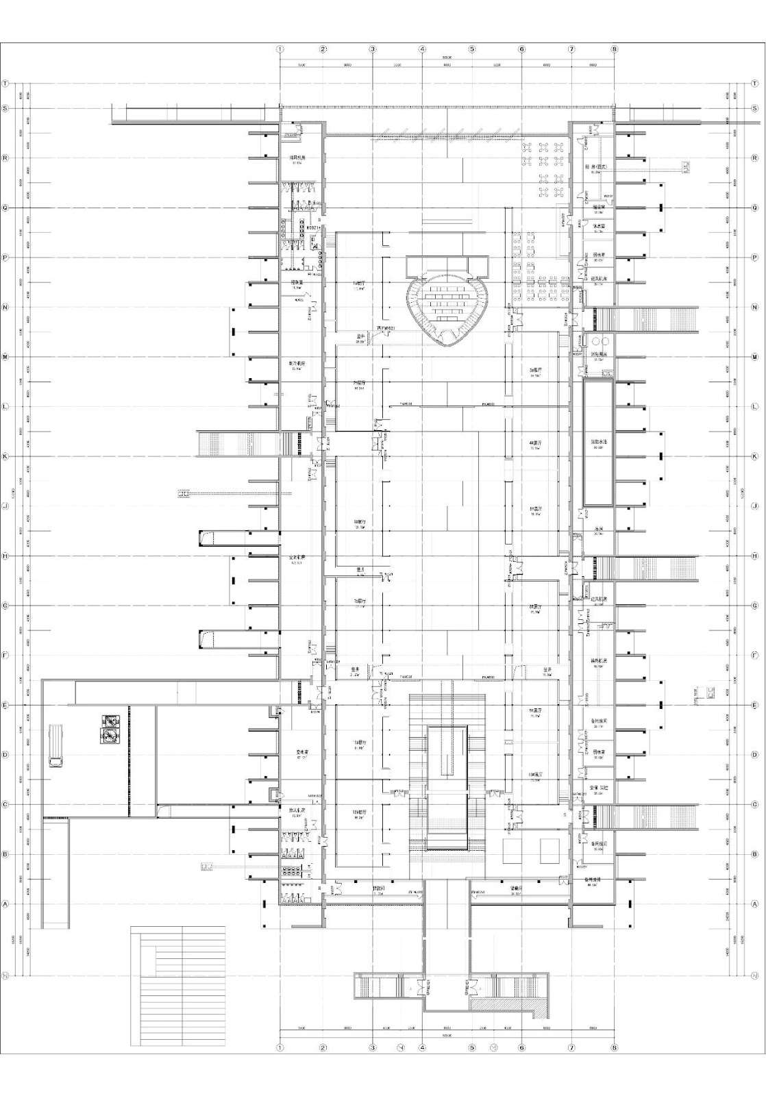
drawing 01
For this reason, the new building must stand a clear and positive attitude to the improvement of the scenic spot. Therefore, unlike the usual approach, the volume of construction sinks into ground to avoid the negative changes toward the ancient heritage and its surrounding environment. Applying modern techniques to contemporary architecture, the museum is perfectly integrated into the entire scenic area.
For this reason, the new building must stand a clear and positive attitude to the improvement of the scenic spot. Therefore, unlike the usual approach, the volume of construction sinks into ground to avoid the negative changes toward the ancient heritage and its surrounding environment. Applying modern techniques to contemporary architecture, the museum is perfectly integrated into the entire scenic area.
drawing 02
As designing, the large dimension building of an area of 6000 square meters is almost hidden under the ground. What’s more, strengthening with its 300-meter-long roof, the building expresses a simple and smooth architectural language, as a fine rhythm into the beauty of land. With the “openness and vast” artistic conception serving as a means for expression, the whole architecture Grottoes’ profound history and brilliant artistry.

As designing, the large dimension building of an area of 6000 square meters is almost hidden under the ground. What’s more, strengthening with its 300-meter-long roof, the building expresses a simple and smooth architectural language, as a fine rhythm into the beauty of land. With the “openness and vast” artistic conception serving as a means for expression, the whole architecture Grottoes’ profound history and brilliant artistry.

drawing 03
A new architectural landscape after 1500 years will bring a bright future for the exquisite cultural heritage and recall its beauty of delicacy and vicissitudes to the whole world. View of top, the roof with the simple rhythm in wave makes the whole building a sense of gravity, since using the match with surroundings, it is perfectly integrated into the entire scenic area.
A new architectural landscape after 1500 years will bring a bright future for the exquisite cultural heritage and recall its beauty of delicacy and vicissitudes to the whole world. View of top, the roof with the simple rhythm in wave makes the whole building a sense of gravity, since using the match with surroundings, it is perfectly integrated into the entire scenic area.
http://www.archdaily.com/217309/yungang-grottoes-museum-in-datong-do-union-architecture/



